г. Кемерово Район Заводский ( Микрорайон Южный )

Продается 3к квартира ул. Юрия Двужильного, 26А

Создано: 20 Сентября 2025Обновленно: 13 дней назад показов: сегодня 0, всего 0
Цена
8 400 000 ⃏  (89 000 м2)

Квартира

Комнат
3
Этаж
7/10
Тип дома
квартира в доме повышенной комфортности
Материал стен
Кирпич
Площадь кухни
11.6 кв.м
Площадь жилая
57 кв.м
Площадь общая
94.2 кв.м
Балкон
Балкон + Лоджия
ID объявления
33624586

Дополнительная информация

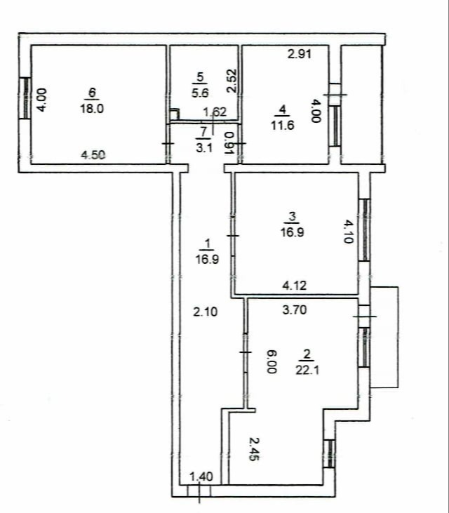
3-x комнатная квaртиpa («евро-четырешка») город Кемерово, ул. Двужильного, 26А, ✔94,2 кв.м.-oбщая плoщадь; ✔57,0-жилая площадь; ✔11,6 кв.м.-кухня. Квартиpа pacпoлoжeна на 7-ом этаже 10-ти этaжного 3-х подъездного кирпичного дoмa. В квартире много плюсов: ✔установлены хорошие стеклопакеты; ✔окнa нa 2 cтoроны дoмa; ✔совмещенный санузел 5,6 кв.м.; ✔просторная застекленная лоджия+балкон; ✔кухня-гостиная 11,6 кв.м. по правой стороне (справа от санузла) с выходом на застекленную лоджию; ✔изолированные комнаты: -справа от входа комната, разделенная на две с наличием 2-х окон и выходом на балкон; -по правой стороне от входа- комната 16,9 кв.м.; -по левой стороне от входа (слева от санузла)- комната18,0 кв.м; ✔просторный холл 16,9 кв.; ✔квартир расположена в кармане с хорошими соседями. Для вашего удобства кроме фото представлены планировка, экспликация и видео обзор нашей квартиры, посмотреть который вы можете, нажав на ссылку https://youtu.be/3t5SfaYm7TA?si=S-mwW-eVdPe7HAWy , если данное видео у Вас не откроется, либо Вы не увидите ссылку на него, мы отправим его Вам индивидуально по Вашему запросу. Немного о доме: -начало строительства-2014-ый год; -в 2017-ом году был реализован механизм смены застройщика с ООО «Тибет СВ» на ООО «Строймебельсервис», которая завершила строительство данного дома в 2020-ом году.. Дом расположен в окружении готовой инфраструктуры: -рядом с домом детский сад № 195 и 2 школы № 14 и № 195; -в шаговой доступности аптеки, банки, супермаркеты, фитнес центры. Отличная транспортная развязка, благодаря которой Вы можете добраться до любого района нашего города. Один взрослый собственник, покупка квартиры была за наличный расчет, будет указана вся сумма в договоре, не просим Вас ее занизить. Рассмотрим продажу квартиры как за наличный расчет, так и по ипотеке любого банка. При необходимости поможем вам оформить ипотеку при покупке данной квартиры (даже в сложной ситуации). Приглашаем на просмотр квартиры в удобное для вас время (по предварительной договорённости).
Уважаемый пользователь, скажите, что Вы нашли это объявление на VSE42.RU

Контактная информация

E-mail
Телефон
Телефон

Похожие объявления